Pegler Square, Kidbrooke Village, London, SE3 9FX
Property Summary
Full Details
.
B&C Properties are pleased to offer this spacious one bedroom apartment set within this exclusive and exceptionally high quality development within Kidbrooke Village located in the village centre the Square.
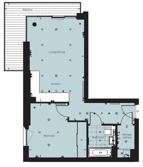
This apartment has been decorated to an extremely high standard throughout. The apartment comprises of a large open plan living, dining and kitchen area with floor to ceiling height window opening onto a private balcony. The kitchen is fully equipped to a very high standard including oven, dishwasher, fridge/freezer.
The apartment is situated right next to Kidbrooke train station, which runs to Lewisham in 6 minutes,London Bridge station in 15 minutes, Waterloo East in 20 minutes, Charing Cross in 25 minutes and 28 minutes to London Victoria, all of which are positioned on the main London Underground lines.
The development benefits from a vast amount of parkland and it is situated in the immediate vicinity of some of the most vibrant areas of London, Blackheath Village and Greenwich, both featuring an array of boutiques, restaurants and bars.










