Grosvenor Hill, London, SW19 4RX
Property Summary
Full Details
.
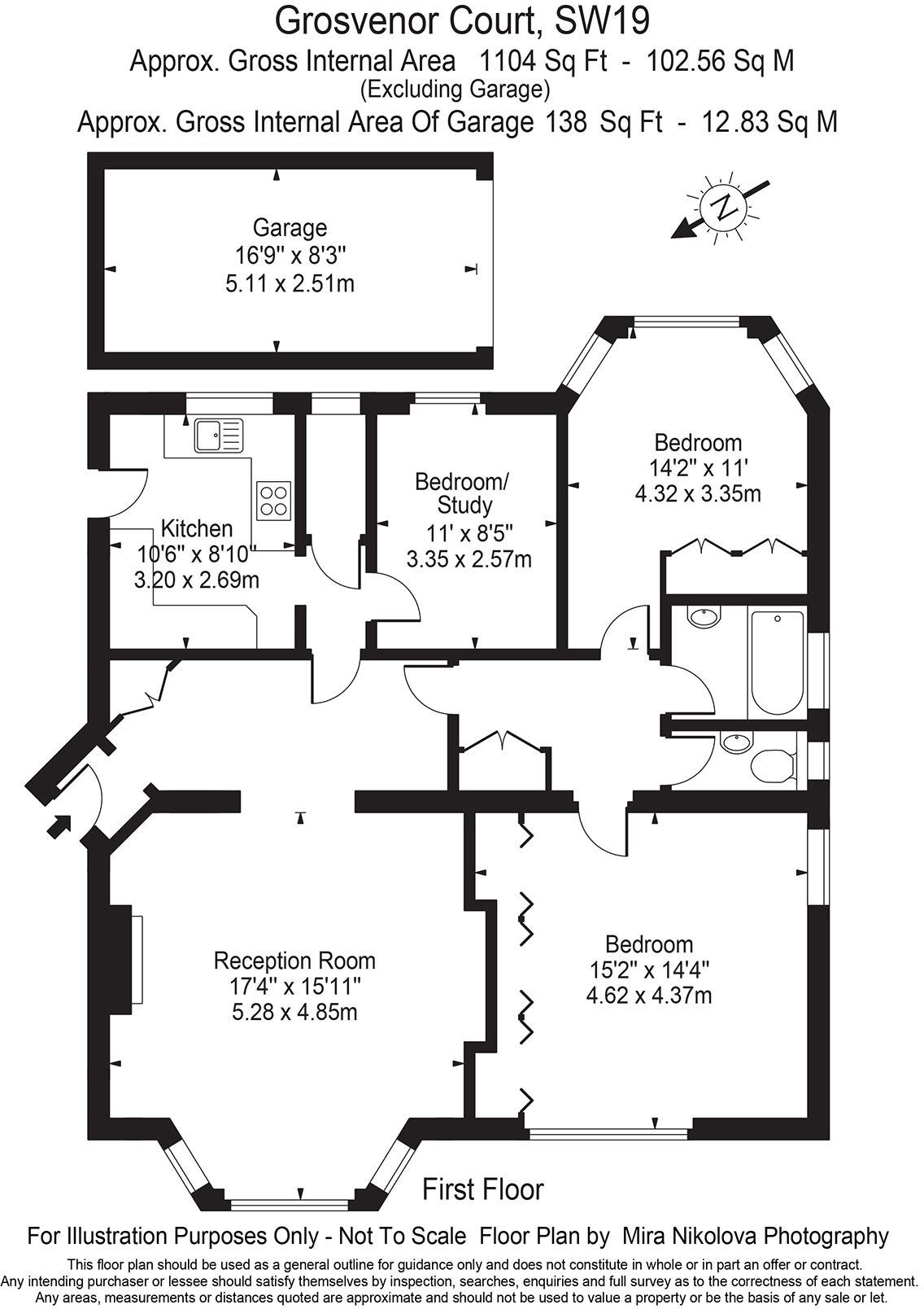
B&C Properties is proud to present this newly redecorated three-bedroom apartment on the ever popular Grosvenor Hill in Wimbledon. The flat is located on the 1st floor of this Victorian conversion property---Grosvenor Court, with the benefit of GENERAL RIGHT TO PARK.
Boasting three very good size double bedrooms, all furnished with super-size wardrobes, offering plenty of storage. A well-presented and spacious reception room, fully fitted modern kitchen and modern bathroom equipped with shower. The property also benefits from communal garden and newly built garage.
Approximately 10 minutes walk to Wimbledon underground and train Station and Within very close proximity of Wimbledon Village for amazing pubs, restaurants, boutiques and the Wibledon Common.


























