Under Offer
Tizzard Grove, Kidbrooke Village, London, SE3 9EE
£545,000
Property Summary
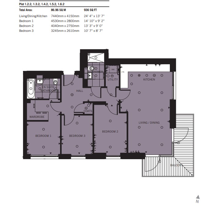
This luxury, bright, and spacious three beds two baths apartment on the 6th floor in Wallace Court at Kidbrooke Village, offering magnificent view of the Cater park and waterfall, with benefit of right to park and underfloor heating.
This apartment has been decorated to an extremely high standard throughout. The apartment comprises of a large open plan living, dining and kitchen area with floor to ceiling height windows opening onto a large L shape private terrace. The kitchen is fully equipped to a very high standard including a dish washer, fridge/freezer.
The master bedroom has a dressing area of fitted wardrobes and modern ensuite bathroom. The second and third bedrooms are very good size double rooms. There is also a separate shower room equipped with high tech appliances. Residents
benefit from full membership to the on-site gym and swimming pool, free use of onsite private cinema, business centre and 24 hours concierge service.
This property is only a 5 minute walk to Kidbrooke train station which runs to London Bridge station
in 15 minutes, Waterloo East in 20 minutes, Charing Cross in 25 minutes and 28 minutes to London Victoria, all of which are positioned on the main London Underground lines.
The development benefits from a vast amount of parkland and it is situated in the immediate vicinity of some of the most vibrant areas of London, Blackheath Village and Greenwich, both featuring an array of boutiques, restaurants and bars.
This apartment has been decorated to an extremely high standard throughout. The apartment comprises of a large open plan living, dining and kitchen area with floor to ceiling height windows opening onto a large L shape private terrace. The kitchen is fully equipped to a very high standard including a dish washer, fridge/freezer.
The master bedroom has a dressing area of fitted wardrobes and modern ensuite bathroom. The second and third bedrooms are very good size double rooms. There is also a separate shower room equipped with high tech appliances. Residents
benefit from full membership to the on-site gym and swimming pool, free use of onsite private cinema, business centre and 24 hours concierge service.
This property is only a 5 minute walk to Kidbrooke train station which runs to London Bridge station
in 15 minutes, Waterloo East in 20 minutes, Charing Cross in 25 minutes and 28 minutes to London Victoria, all of which are positioned on the main London Underground lines.
The development benefits from a vast amount of parkland and it is situated in the immediate vicinity of some of the most vibrant areas of London, Blackheath Village and Greenwich, both featuring an array of boutiques, restaurants and bars.


































