For Sale
Tudway Road, Kidbrooke, London, SE3 9FR
£515,000
Property Summary
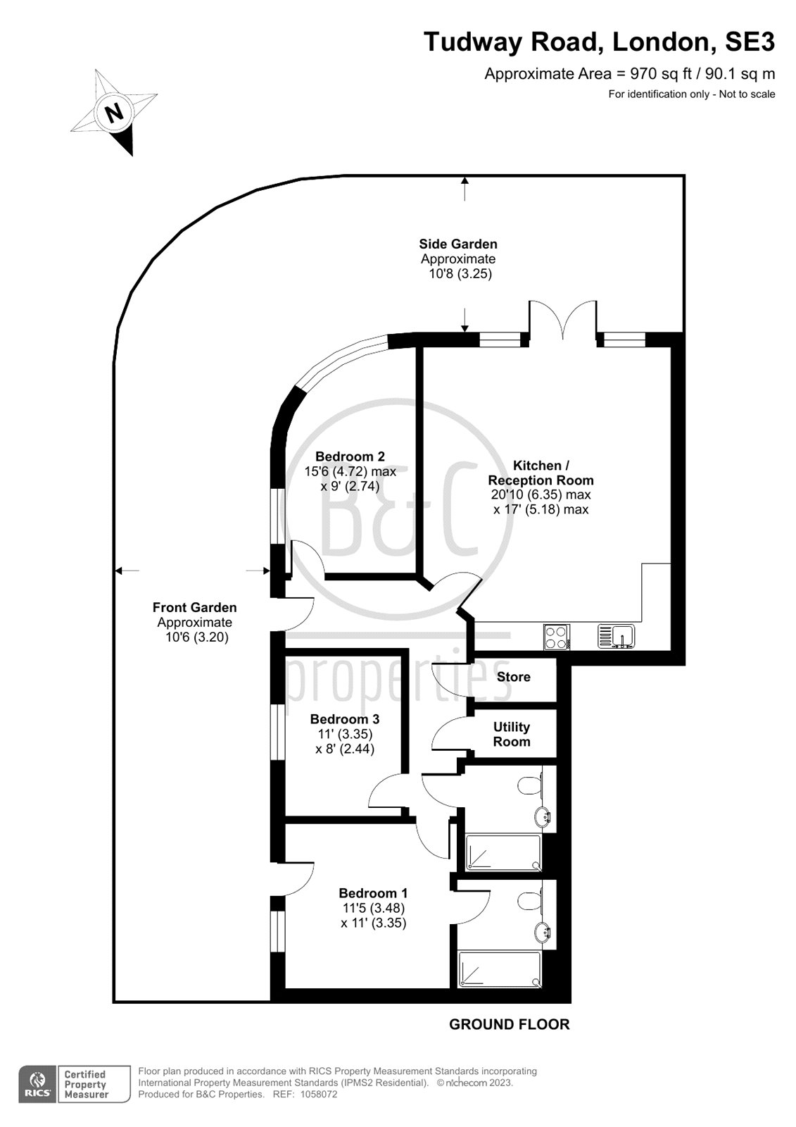
We are delighted to present this well-proportioned three bedroom, two bathroom apartment located on the sought-after Tudway Road.Offering bright and spacious interiors throughout, the property provides a well balanced layout. Residents benefit from access to a well-maintained communal garden, perfect for relaxing or entertaining, along with added convenience of resident parking. Ideally positioend close to local amenities and excellent transport links, this property combines comfort with practicality.




























